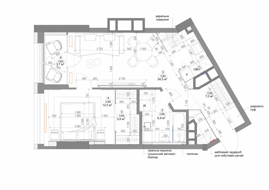
Completed apartment with an area of 57.5 m² in Kyiv, Manhattan residential complex.


































Living room + Kitchen + Hallway



















Bedroom









Bathroom





We will contact you shortly to clarify the details and answer your questions.
Completed apartment with an area of 57.5 m² in Kyiv, Manhattan residential complex.
Living room + Kitchen + Hallway
Bedroom
Bathroom