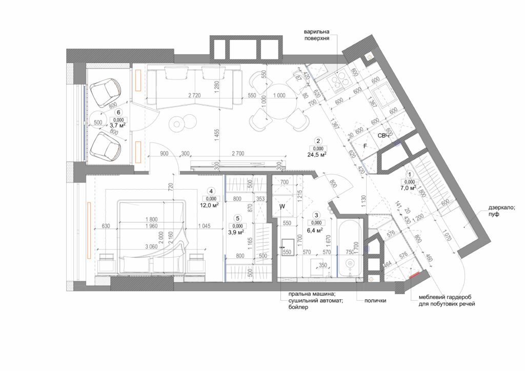
Реалізована квартира площею 57.5 м² в місті Київ, ЖК Manhattan.


































Вітальня + кухня + передпокій



















Спальня









Ванна кімната





Ми зв'яжемося з вами найближчим часом, щоб уточнити деталі та відповісти на ваші запитання.
Реалізована квартира площею 57.5 м² в місті Київ, ЖК Manhattan.
Вітальня + кухня + передпокій
Спальня
Ванна кімната